富山市 五福の賃貸売買物件のことなら宮宏不動産
トップページ
賃貸
売買
駐車場
会社案内
アクセス
お問い合わせ
各種申込書
For Rent
賃貸物件
トップ
賃貸物件
貸店舗・貸事務所
内幸町テナント
TOP
外観
間取
物件
情報
部屋
情報
地図
内幸町テナント
|
富山市内幸町8-6
賃料
25万円
共益費/管理費等
円
敷金/礼金
6ヵ月/1ヵ月
所在地
富山市内幸町8-6
交通
-
お問い合わせ
メールで問い合わせ
TEL:
076-442-7700
営業時間 9:00〜17:00
定休日 土・日・祝 / 祝祭日 / 夏季休業 / 年末年始
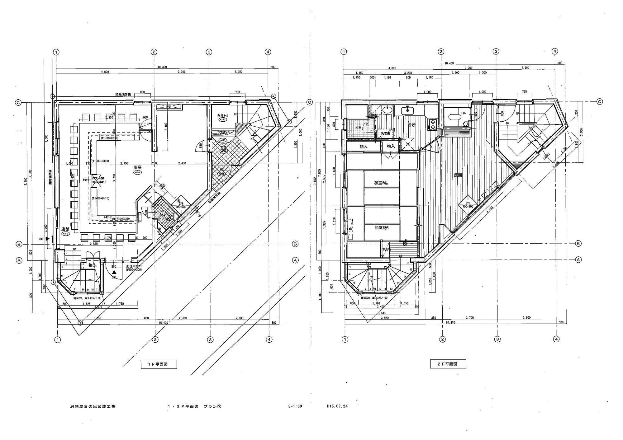
前居酒屋店で居抜き物件!
1階部分(約18.05坪)2階部分(約18.69坪)
外観・間取り
物件情報
物件名
内幸町テナント
住所
富山市内幸町8-6
建築構造
鉄筋コンクリート造
階数
1.2階
学区
芝園小学校
築年月
昭和57年10月
沿線・駅
-
部屋情報
敷金
1,500,000円
礼金
250,000円
鍵交換
費用
(税込)
-
仲介手数料
(税込)
275,000円
契約時
費用
2,025,000円
賃料(税込)
250,000円
町費
別途
月合計額
250,000円
備考
居抜きの為、設備に関しては相談です。
現況
空
入居
可能日
即日
契約期間
2年
保証会社
利用可
連帯
保証人
要
方角
-
専有面積
121.46㎡
駐車場
なし
更新料(税込)
30,000円
駐輪場
なし
ベランダ
-
備考
設備は相談 賃貸は、1階2階セット
設備
水道
公営
ガス
都市ガス
トイレ
あり
照明
有り
冷暖房
-
セキュリ
ティー
-
備考
県庁前公園近くで、2階部分居住可能
地図
周辺環境
富山県庁
メールで問い合わせ
TEL:
076-442-7700
1階部分(約18.05坪)2階部分(約18.69坪)